Adding thermal purge to oil boiler with 2 zones
Hello, I am wanting to add thermal purge to my boiler. I have 2 zones - upstairs zone is forced hot air via a heat exchanger and blower in the attic, downstairs zone is baseboards. There are no zone valves, just a circulator for each zone controlled by a TACO SR504 4-zone switching relay. To add the thermal purge function, I have a Honeywell reverse acting strap on aquastat (makes contact on temp rise). I was planning to wire the aquastat to the basement zone circulator (120v HOT to R, B to C1) to purge the heat there. But then I realized that when the upstairs zone is calling for heat, the circulator for the downstairs zone would be running - stealing heat from the upstairs zone (where I really want it). Is there a simple way to interrupt the new purge function while the upstairs zone wants heat? Use the NC contact of a Relay in a Box, I assume? Thanks.
Comments
-
-
20+ year oil Weil McLain oil fired. I do not want to change the aquastat or take the digital programmable route. I want the the thermal purge as an add-on so that it does not confuse future service techs (or myself).
0 -
-
Which is exactly why there should be a control thats known to experienced techs, rather than a MacGyver setup that nobody has ever seen before. Because most techs out there haven't seen the 70's.
0 -
A delay off timer would be another way of achieving this, I agree. I already have the strap-on L4008A aquastat. The problem is that I can't dump the residual heat into the upstairs forced hot air zone.… hmmm…. unless I wired the blower to run along with this zone's circulator. That might not be so easy though. The downstairs zone is much simpler. I just need to stop the purge function when the upstairs zone is calling for heat.
BTW, the aquastat on the boiler is a Honeywell L8148. And there is a separate hot water heater.
0 -
my system is a single zone so that's how i get away with it. Maybe you could setup the purge zone to be the second priority and so it wouldn't ever starve the other zone during a purge. Starts to get a little needlessly complex at this point,, and a proper aquastat starts to make sense but since you have a strap on in place already it might make sense.
This sounds like old tech but you could always run off one thermostat and just send heat to both zones at the same time, and just adjust flow on the zone without the thermostat, then your boiler will run all at once, everyone gets heat, purge, done. It could help with short cycling. That's basically how my system works, my thermostat is downstairs and I just have a balancing valve on pipes going to the upstairs and downstairs, i just choke whatever gets too hot. Makes my runs longer and longer in between.
Please note i am not a plumber or hydronic expert, i have no training. I am just a home owner attempting to save money where i can!
1 -
what is the goal of the purge? How high of a mass do you have to make it worthwhile to purge? Will the purge overheat a zone or room?
The purge may leave you with a cold start boiler on every fire? Cold starts are the least efficient run mode for that boiler, so any purge gains may go up the flue anyways.
I’d be looking for a way to keep the boiler online as much and long as possible. Outdoor reset is a good option for long or near constant boiler run cycles.
Bob "hot rod" Rohr
trainer for Caleffi NA
Living the hydronic dream1 -
A Hydrostat 3250 plus would give you thermal purge, and if you change the well, LWCO. It also gives you circulator hold off and economy features, and indicator lights…and a more accurate temperature thermistor.
Seems like a better way to go, and like @HVACNUT said, anyone can easily work on it/troubleshoot. Not much more money than anything you make yourself.
Becket used to have a control that did this.
And of course this is SOP for an Energy Kinetics.
1 -
I use the purge for my solid fuel system to put the excess heat from overshoot into the living space instead of the basement. Does his aquastat support an outdoor reset sensor?
I'm sorry if I gave anyone unprofessional advice, If he has an indirect what about this setup makes it undesirable for a cold start? Too high of mass or emitter types? Thanks in advance!
0 -
Guys, I do appreciate your suggestions, but none of them answer the question that I asked.
Let's start over. 20+ year old Weil McLain oil-fired boiler. How much longer will it last? It doesn't matter because the next one will have all the modern controls, I'm sure. This heating system works perfectly well for what it is. Thermal purge is just an experiment - there could be large gains, small gains, or no gains at all. I plan to run the circulator until the return temperature drops to 135°. I am familiar with the Hydrostat - I don't want one.
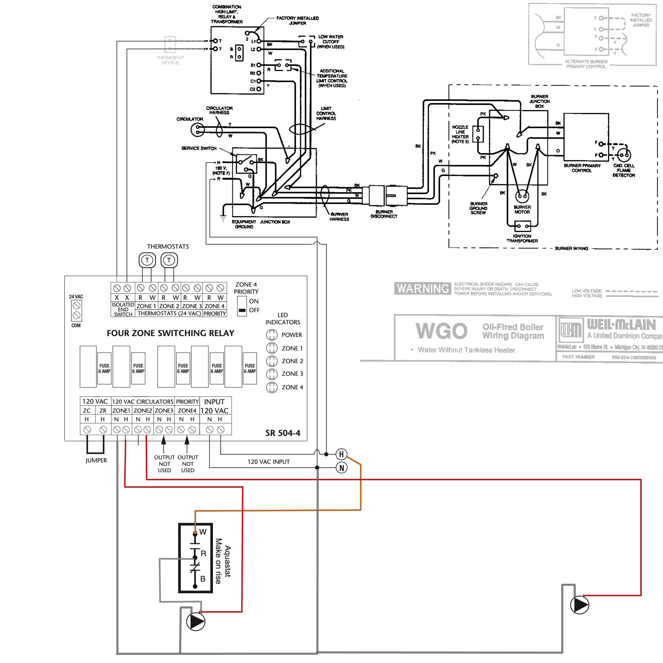
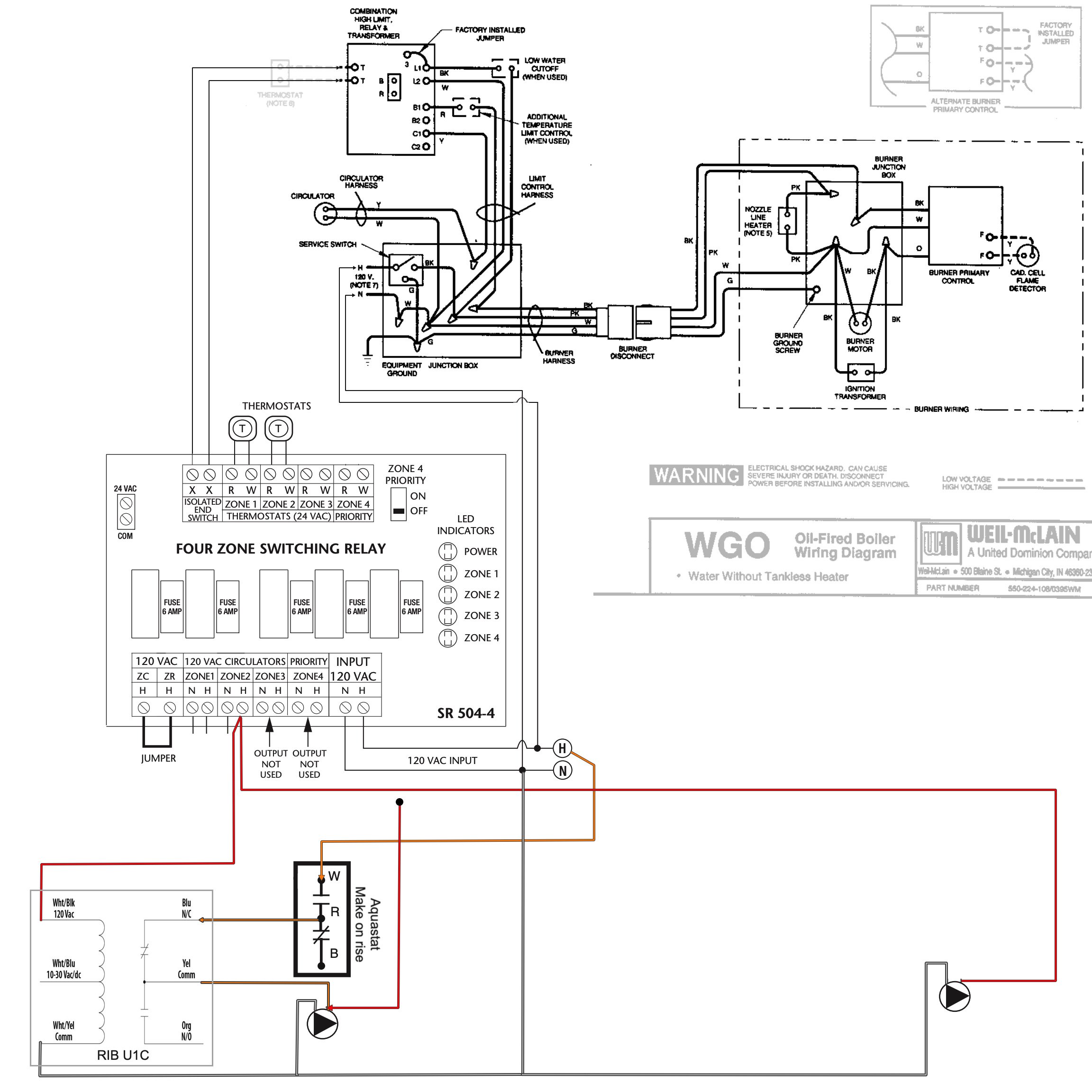
A parallel circuit to power a circulator switched by an aquastat is not complicated. I just need to interrupt that function when the other zone is calling for heat. It should be as simple as using a Relay In A Box - the NC contact would be wired in-between the aquastat and circulator and activated by the upstairs thermostat (the NC contact would then open).
0 -
Not sure what series your WM boiler is but you can ad lib from the XX on the SR504 to the boiler TT.
You need a relay to stop the thermal purging circulator if the other zone calls. That way you will stop the boiler heat from being sent to the zone that is no longer calling. I believe this set up will work for you
Control logic is this
Start with cold boiler and no call for heat.
- Zone 1 calls for heat power goes to the C1 circulator
- Power goes to RIB 2 relay (which has no effect since there is no call for heat on Zone 2)
- Zone 1 Reverse Aquastat 1 makes on temp rise (makes alternate route for power to C1)
- Call for heat is over for zone 1
- C1 continues to purge any heat from the boiler until
- the thermal purge is finished
- Zone 2 calls for heat and opens the RIB 1 relay NO contacts to stop the C1 from operating by way of the thermal purge contacts on Reverse Aquastat 1
You can do the same on the other zone for thermal purge to the air handler. I like the RIBU1C for the relay in this case.
If you are only thermal purging the baseboard zone, the RIBU1C gets wired to the Zone 2 with the zone 2 circulator.
Edward Young Retired
After you make that expensive repair and you still have the same problem, What will you check next?
0 -
I have a feeling that this is what you originally thought of
Add one Reverse Aquastat (make on temp rise) to the baseboard zone. The you realized if there is a call for heat from the other zone, the purging zone pump will keep sending hot water to the zone that is not calling for heat, and that would not be ideal.
Adding one RIBU1C will fix that
But why stop there? add the thermal purge to both zones.
Edward Young Retired
After you make that expensive repair and you still have the same problem, What will you check next?
0 -
Yes, you understand Ed, thank you. > > > Add one Reverse Aquastat (make on temp rise) to the baseboard zone. The you realized if there is a call for heat from the other zone, the purging zone pump will keep sending hot water to the zone that is not calling for heat, and that would not be ideal.
Now you have me thinking…. I chose the basement zone for the purge because all that needs to be done is to run it's circulator. The preferred zone would be upstairs (the forced hot air zone). If I ran that zone's circulator instead, would the blower run automatically? If so, then even simpler and problem solved.
0 -
Run both that way using the diagram I provided. the zone that operates more will use the thermal purge more that the zone that runs less.
As far as the fan operating on the air handler, that is to be determined. How is the fan wired into the hot water system? I would need to see that to determine if it will work that way. Sometimes the fan is wired to the heat relay that also operates the zone for the hot water fan coil. That way the fan comes on and blows cold air for a few minutes until the heat finally catches up to the fan coil and starts to heat the home. It's kind of uncomfortable to have cold air from the duct work for several minutes until the hot water reaches the coil. To keep that from happening some fans operate by way of a strap on aquastat or temperature limit that makes on temperature rise. That way the fan stays off until the hot water reaches the coil and will blow warm air almost instantly.
Can you take some photos of your air handler and the wiring diagram of the air handler? Also some photos of the wiring and relays that may have been added to operate the fan for heat when the coil gets hot.
Edward Young Retired
After you make that expensive repair and you still have the same problem, What will you check next?
0
Categories
- All Categories
- 87.3K THE MAIN WALL
- 3.2K A-C, Heat Pumps & Refrigeration
- 61 Biomass
- 429 Carbon Monoxide Awareness
- 120 Chimneys & Flues
- 2.1K Domestic Hot Water
- 5.8K Gas Heating
- 115 Geothermal
- 166 Indoor-Air Quality
- 3.7K Oil Heating
- 77 Pipe Deterioration
- 1K Plumbing
- 6.5K Radiant Heating
- 395 Solar
- 15.7K Strictly Steam
- 3.4K Thermostats and Controls
- 56 Water Quality
- 51 Industry Classes
- 50 Job Opportunities
- 18 Recall Announcements





